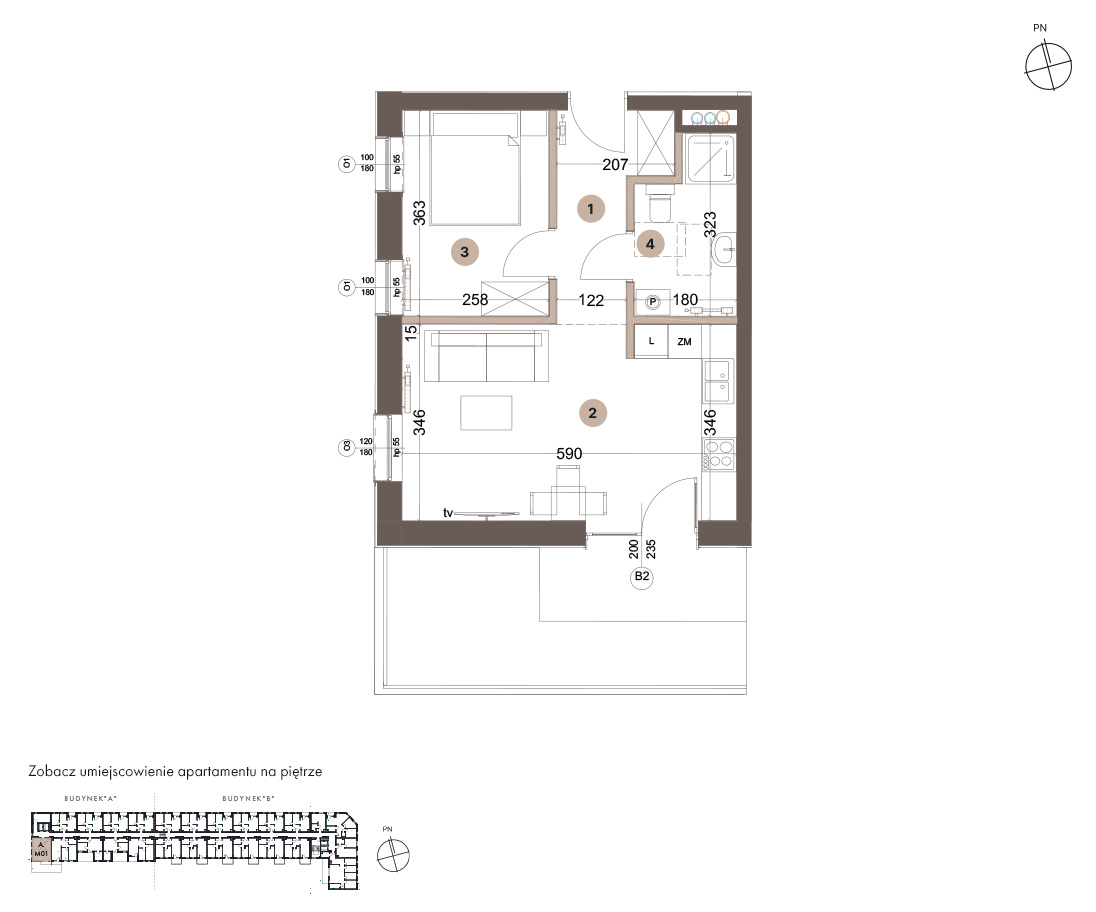
Powierzchnia
40,30 m2
Piętro
1
Pokoje
2
Cena mieszkania
508 000 zł
12 605.46 zł/m²
Miejsce parkingowe
Komórka lokatorska
Możliwość dokupienia po kontakcie. Lista komórek.
Cena całkowita:
575 000 zł
1. Hol
5,57 m2
2. Salon z aneksem
20,32 m2
3. Pokój
9,36 m2
4. Łazienka
5,05 m2
Taras
16,90 m2
