Powierzchnia
40,30 m2
Piętro
3
Pokoje
2
Cena mieszkania
496 000 zł
12 307.69 zł/m²
Miejsce parkingowe
Komórka lokatorska
Możliwość dokupienia po kontakcie. Lista komórek.
Cena całkowita:
563 000 zł
Kliknij na zdjęcie, aby powiększyć.
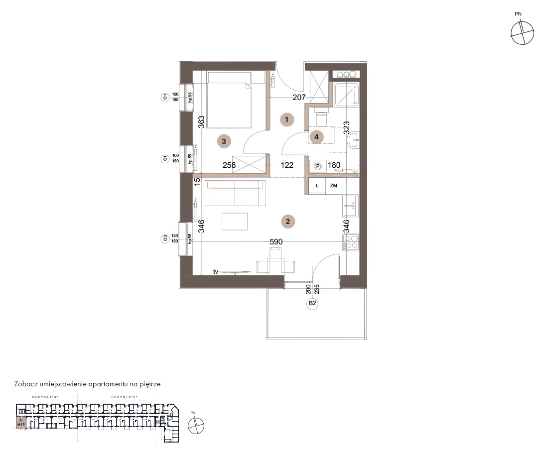
1. Hol
5,57 m2
2. Salon z aneksem
20,32 m2
3. Pokój
9,36 m2
4. Łazienka
5,05 m2
Balkon
6,25 m2
