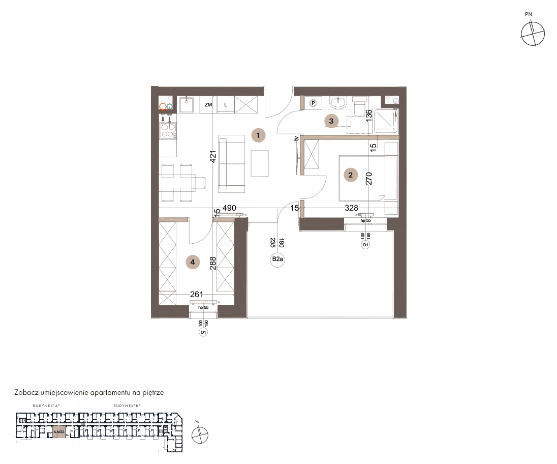
Powierzchnia
40,82 m2
Piętro
3
Pokoje
2
Cena mieszkania
563 000 zł
13 792.26 zł/m²
Miejsce parkingowe
Komórka lokatorska
Możliwość dokupienia po kontakcie. Lista komórek.
Cena całkowita:
630 000 zł
1. Salon z aneksem
20,24 m2
2. Pokój
8,86 m2
3. Łazienka
4,2 m2
4. Spiżarnia
7,52 m2
Loggia
15,01 m2
