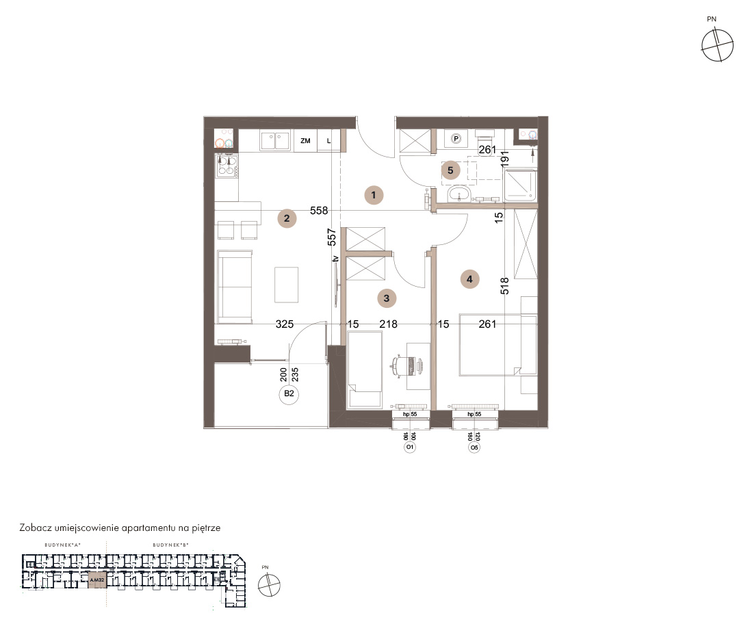
Powierzchnia
51,61 m2
Piętro
4
Pokoje
3
Cena mieszkania
683 000 zł
13 233.87 zł/m²
Miejsce parkingowe
Komórka lokatorska
Możliwość dokupienia po kontakcie. Lista komórek.
Cena całkowita:
750 000 zł
Kliknij na zdjęcie, aby powiększyć.
1. Hol
7,09 m2
2. Salon z aneksem
17,71 m2
3. Pokój
8,6 m2
4. Pokój
13,51 m2
5. Łazienka
4,7 m2
Loggia
4,71 m2
