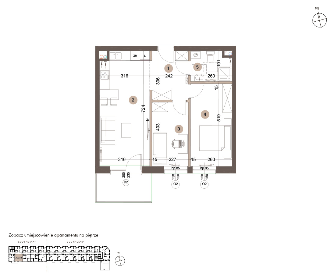
Powierzchnia
57,00 m2
Piętro
5
Pokoje
3
Cena mieszkania
724 000 zł
12 701.75 zł/m²
Miejsce parkingowe
Komórka lokatorska
Możliwość dokupienia po kontakcie. Lista komórek.
Cena całkowita:
791 000 zł
Kliknij na zdjęcie, aby powiększyć.
1. Hol
7,2 m2
2. Salon z aneksem
22,45 m2
3. Pokój
9,15 m2
4. Pokój
13,51 m2
5. Łazienka
4,69 m2
Balkon
6,28 m2
