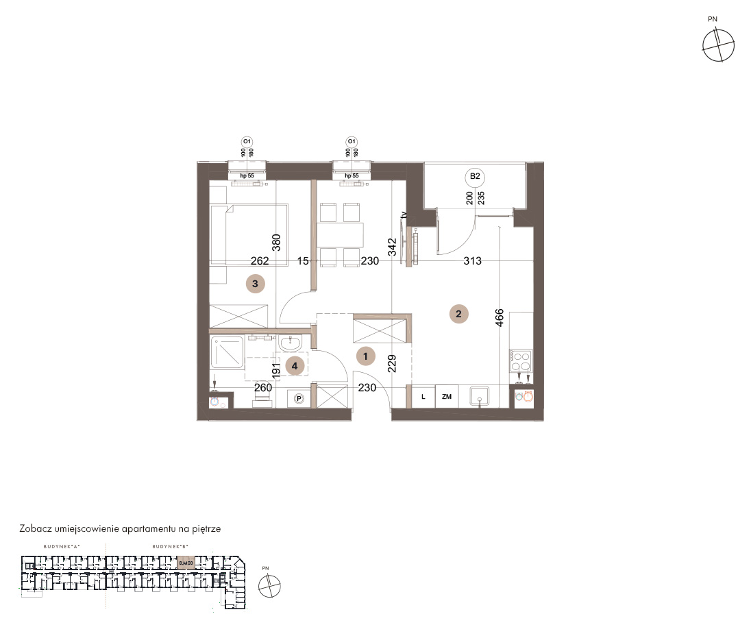
Powierzchnia
42,37 m2
Piętro
1
Pokoje
2
Cena mieszkania
500 000 zł
11 800.8 zł/m²
Miejsce parkingowe
Komórka lokatorska
Możliwość dokupienia po kontakcie. Lista komórek.
Cena całkowita:
567 000 zł
Kliknij na zdjęcie, aby powiększyć.
1. Hol
5,55 m2
2. Kuchnia z jadalnią
22,21 m2
3. Pokój
9,91 m2
4. Łazienka
4,7 m2
Loggia
2,95 m2
