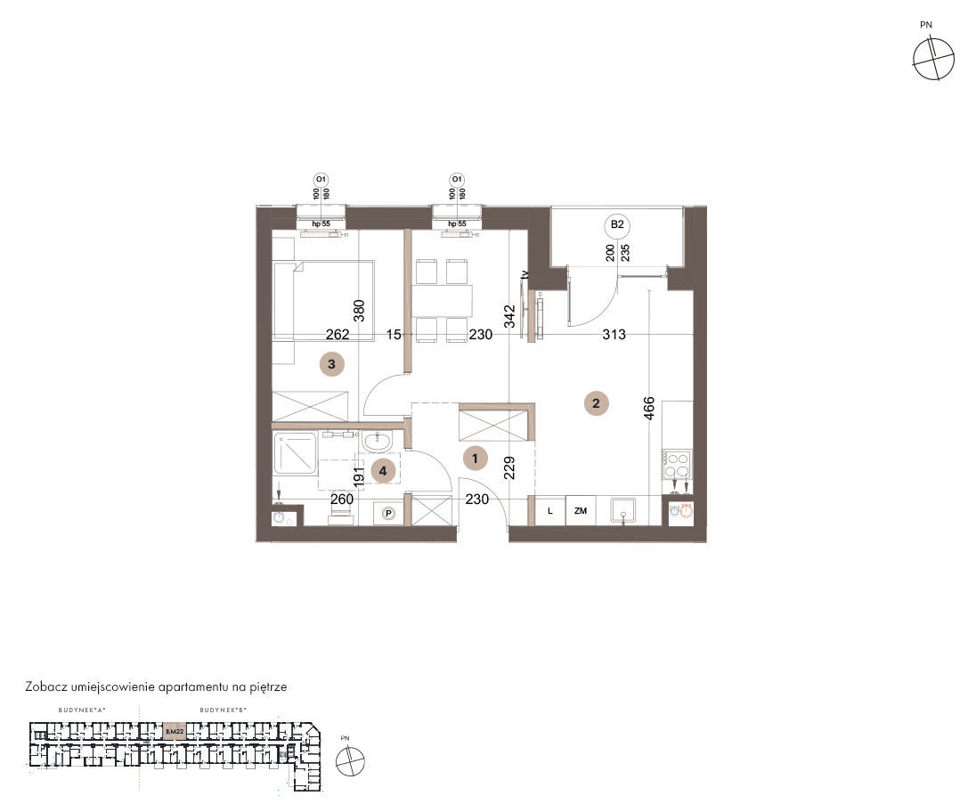
Powierzchnia
42,37 m2
Piętro
2
Pokoje
2
Kliknij na zdjęcie, aby powiększyć.
1. Hol
5,55 m2
2. Kuchnia z jadalnią
22,21 m2
3. Pokój
9,91 m2
4. Łazienka
4,7 m2
Loggia
2,95 m2
Powierzchnia
42,37 m2
Piętro
2
Pokoje
2
Kliknij na zdjęcie, aby powiększyć.
1. Hol
5,55 m2
2. Kuchnia z jadalnią
22,21 m2
3. Pokój
9,91 m2
4. Łazienka
4,7 m2
Loggia
2,95 m2

Porozmawiajmy
Jesteśmy dostępni codziennie od 8 do 17
i z przyjemnością opowiemy więcej o inwestycji i jej możliwościach.