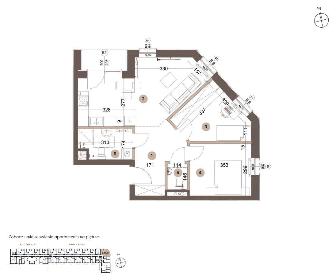
Powierzchnia
58,17 m2
Piętro
2
Pokoje
3
Cena mieszkania
710 000 zł
12 205.6 zł/m²
Miejsce parkingowe
Komórka lokatorska
Możliwość dokupienia po kontakcie. Lista komórek.
Cena całkowita:
777 000 zł
Kliknij na zdjęcie, aby powiększyć.
1. Hol
9,17 m2
2. Salon z aneksem
21,53 m2
3. Pokój
10,32 m2
4. Pokój
10,54 m2
5. WC
1,67 m2
6. Łazienka
4,94 m2
Loggia
2,95 m2
