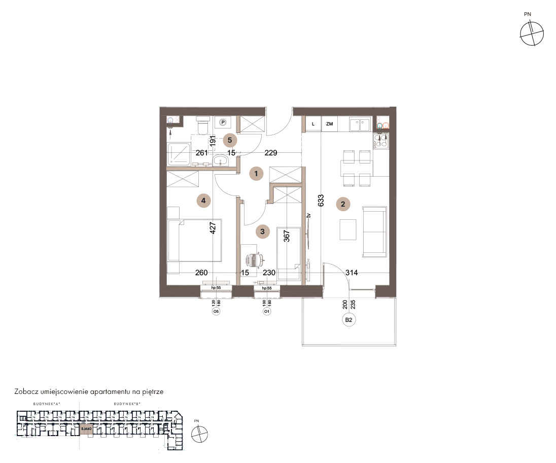
Powierzchnia
49,53 m2
Piętro
3
Pokoje
3
Cena mieszkania
600 000 zł
12 113.87 zł/m²
Miejsce parkingowe
Komórka lokatorska
Możliwość dokupienia po kontakcie. Lista komórek.
Cena całkowita:
667 000 zł
Kliknij na zdjęcie, aby powiększyć.
1. Hol
6,42 m2
2. Salon z aneksem
19,64 m2
3. Pokój
7,63 m2
4. Pokój
11,14 m2
5. Łazienka
4,7 m2
Balkon
6,34 m2
