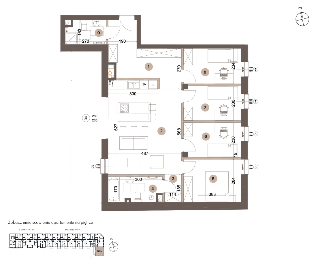
Powierzchnia
92,53 m2
Piętro
3
Pokoje
5
Cena mieszkania
1 191 000 zł
12 871.5 zł/m²
Miejsce parkingowe
Komórka lokatorska
Możliwość dokupienia po kontakcie. Lista komórek.
Cena całkowita:
1 258 000 zł
1. Hol
13,66 m2
2. Salon z aneksem
29,59 m2
3. Hol
2,07 m2
4. Łazienka
5,75 m2
5. Pokój
8,69 m2
6. Pokój
8,73 m2
7. Pokój
8,96 m2
8. Pokój
10,91 m2
9. WC
4,17 m2
Taras
16,90 m2
