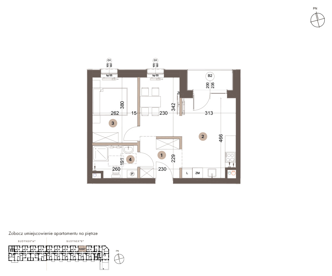
Powierzchnia
42,37 m2
Piętro
5
Pokoje
2
Cena mieszkania
586 000 zł
13 830.54 zł/m²
Miejsce parkingowe
Komórka lokatorska
Możliwość dokupienia po kontakcie. Lista komórek.
Cena całkowita:
653 000 zł
1. Hol
5,55 m2
2. Kuchnia z jadalnią
22,21 m2
3. Pokój
9,91 m2
4. Łazienka
4,7 m2
Loggia
2,95 m2
